Australia

Package From: $950,000

Lot 306 Augistine Drive, Roseworthy, SA 5371

# Location

Description

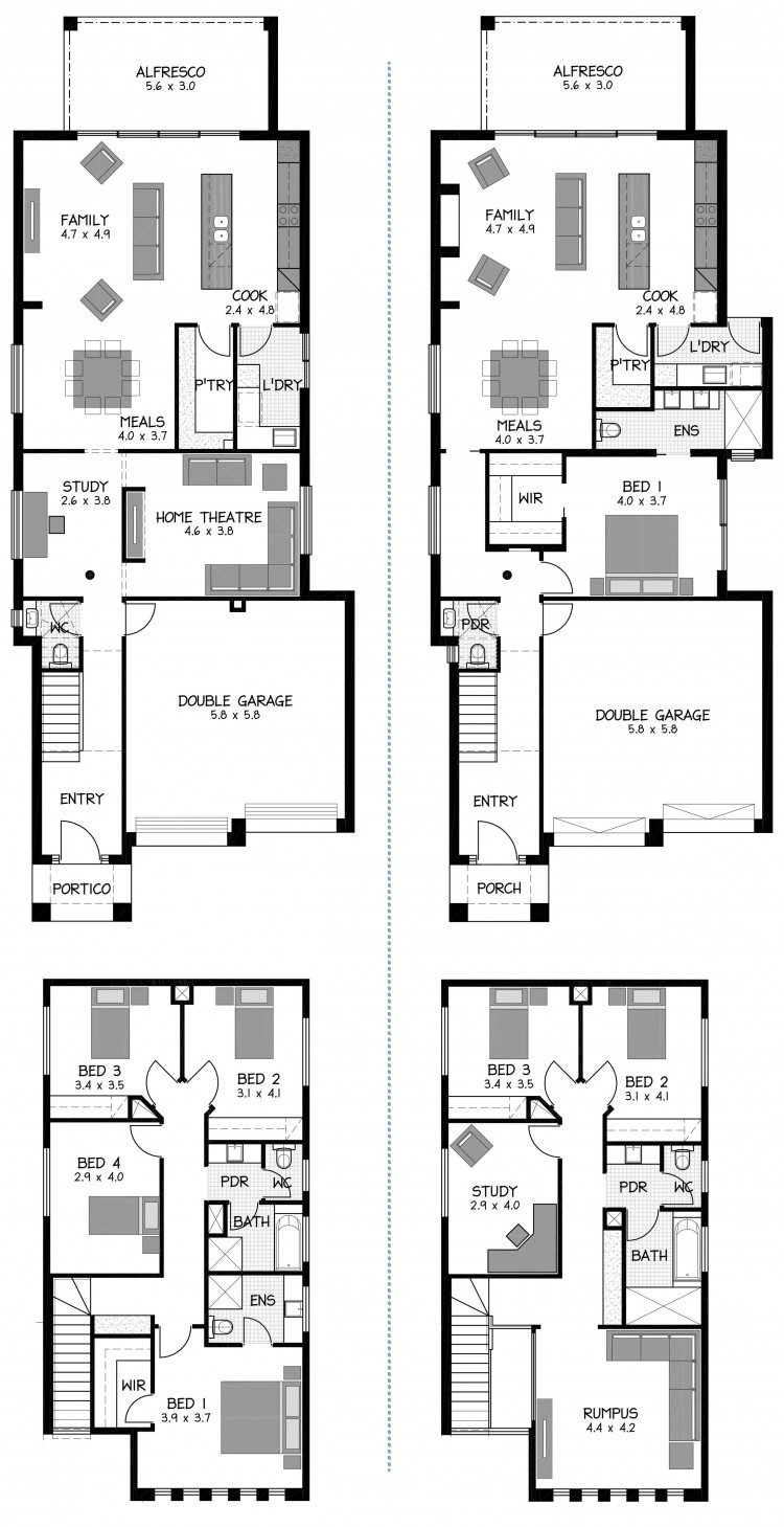
Another carefully curated Rossdale Homes, House & Land Package, this is a concept for a New Home to be built on this land and is based on the plan! This House & Land Package includes the following items: - Inclusive of below: • 2.7M high ceiling to both levels with all cabinetry as shown • 3-4 bedrooms with WIR, Ensuite, Study, x2 living & Alfresco • Upgraded Front Door to: Statement 1.02m Wide x 2.4m High • Floor to ceiling Tilling to Downstairs Powder & Ensuite • Aggregate Concrete pathway & driveway • 900mm Wide Westinghouse appliances incl. Dishwasher! • Additional allowance to standard footings incl. soil removal • Allowance for floor coverings • Ducted reverse cycle heating & cooling air-conditioning system • High Grade Insulation - R2 to external walls & R4 to ceiling • Fully customisable & receives our Fixed Price Guarantee! • 40+ yrs of building excellence, Subject to Tests & Approvals

Additional “Turn Key” Package Price from Approx $51,000

- Inclusive of below: • Solar System Incl. Battery • Home Alarm System • Window Fixtures incl. Curtains, Blinds & Shutters • Grass, Plants, Mulch, Irrigation, Letterbox, Clothesline, Garden Shed • Fencing • Rainwater Tank

Additional Façade Package Price from Approx $52,000

- Inclusive of below: • Stone Double Height Pier to Entry Façade • Timber underside to Portico • Increased Upper Storey Windows • Knotwood® Garage Door Panels

Land: $ 401,000 Build: $ 549,000 Price From: $950,000

Land Size: 474 Sqm Build Size: 269 Sqm / 118 Sqm Living

Rossdale Homes is one of South Australia's most respected new home builders, a proud family owned company that has been building award winning new homes since 1980.

With more than 40 years financial and building experience, Rossdale Homes are strong supporters of affordable, quality new homes as seen in our many display villages around Adelaide as well as many one of a kind custom owner designs. To achieve this, we have listened carefully to our customers input, strived to meet their needs and developed a tradition of providing exceptional service that is tailored to the customers individual new home.

ROSSDALE HOMES Builders Licence: BLD 8104 | RLA 185579

Disclaimer: All care has been taken in the preparation of this material. No responsibility is taken for any errors or omissions. Details are subject to change without notification. Images for illustration purposes only. E&OE.

View More #

Floor Plans

Location

  • Contact the agency

    To request an inspection

  • # Call # Email

Kostas Nicoloulias

Agent Name

# Report Listing

Looking for a property?

  • Top listings
  • Investment
  • Development
  • Personal home
  • Price reports
  • Suburb reports

Do you own a property?

  • Place a free listing
  • Services for private advertisers
  • Guide to selling your home
  • Insurance
  • Improve the photos of your listing
  • Value your property for free

Are you a real estate proffesional?

  • Publish your agencies properties
  • Already a client? Log into your account
  • Advertising on Australian Real Estate
  • Australian Real Estate data technology for property insights
  • Real Estate courses